液體渦輪流量計量表
液體渦輪流量計量表型號生產報價廠家,本流量儀產品型號屬于渦輪流量計分類,更多的液體、渦輪、流量控制儀直銷價格報價歡迎您來電咨詢,下面是液體渦輪流量計量表產品資料詳情。

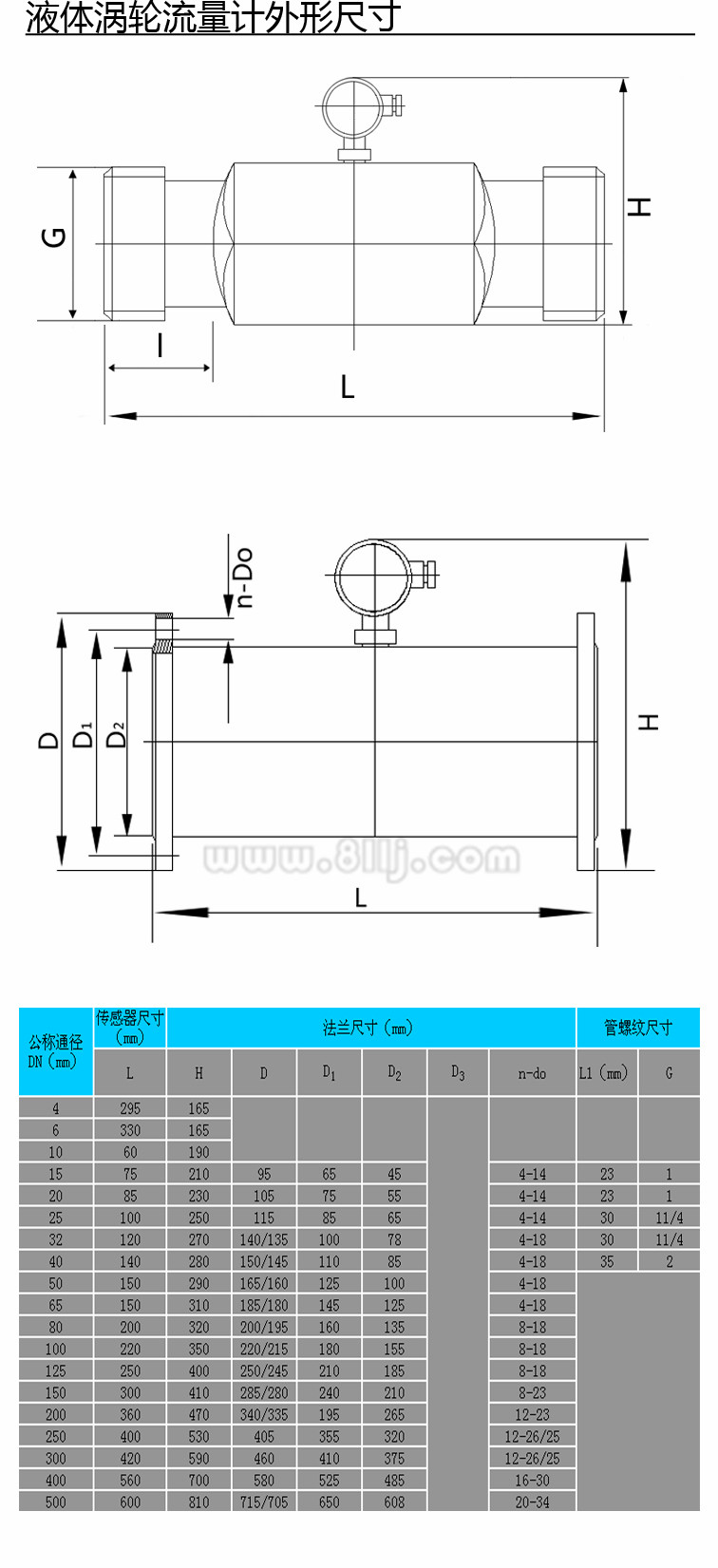
液體渦輪流量計結構為防爆設計,液體渦輪流量計可以顯示流量總量,瞬時流量和流量滿度百分比。電池采用長效鋰電池,單功能積算表電池使用壽命可達5年以上,多功能顯示表電池使用壽命也可達到12個月以上。
一體化液體渦輪流量計表頭可以顯示的流量單位眾多,有立方米,加侖,升,標準立方米,標準升等,可以設定固定壓力、溫度參數對氣體進行補償,對壓力和溫度參數變化不大的場合,可使用該儀表進行固定補償積算。液體渦輪流量計是一種精密流量測量儀表,與相應的流量積算儀表配套可用于測量液體的流量和總量。液體渦輪流量計廣泛用于石油、化工、冶金、科研等領域的計量、控制系統。配備有衛生接頭的液體渦輪流量計可以應用于制藥業。
液體渦輪流量計具有G(高)、Z(中)、D(低)三種系列,工作壓力zui高達到50Mpa。主要用于油田注水系統對高壓水的計量。同時還適用于各種高低壓水機系統的流量檢測。
采用全硬質合金(碳化鎢)屏蔽式懸臂梁結構軸承,集轉動軸承與壓力軸承于一體,大大提高了軸承壽命,并可在少量泥沙與污物的介質中工作。
傳感器采用全不銹鋼結構,(渦輪采用2Cr13)防腐蝕性能好。釤鈷永磁合金作為信號檢測器,輸出信號強,磁穩定性好,可在0-120℃介質中正常工作。
容易維修,流量計有自整流的結構,小型輕巧,結構簡單,可在短時間內將其組合拆開,內部清晰簡單。
液體渦輪流量計特點
?高精確度,一般可達±1%R、±0.5%R,高精度型可達±0.2%R;
?重復性好,如經常校準或在線校準可得到極高的精確度,在貿易結算中是優先選用的流量計;
?具備儀表系數三點修正,智能補償儀表系數非線性,并可進行現場修正;
?所有有效數據掉電后保持10年不丟;
?范圍度寬,中大口徑可達1:20,小口徑為1:10;渦輪流量計渦輪流量計結構緊湊輕巧,安裝維護方便,流通能力大;適用高壓測量,儀表表體上不必開孔,易制成高壓型儀表;
?專用型傳感器類型多,可根據用戶特殊需要設計為各類專用型傳感器,例如低溫型、雙向型、井下型、混砂專用型等
?可制成插入型,適用于大口徑測量,壓力損失小,價格低,可不斷流取出,安裝維護方便;
·可制成插入型,適用于大口徑測量,壓力損失小,價格低,可不斷流取出,安裝維護方便。
液體渦輪流量計分類
液體渦輪流量計的轉速通過裝在機殼外的傳感線圈來檢測。當渦輪流量計葉片切割由殼體內永久磁鋼產生的磁力線時,就會引起傳感線圈中的磁通變化。傳感線圈將檢測到的磁通周期變化信號送入前置放大器,對信號進行放大、整形,產生與流速成正比的脈沖信號,送入單位換算與流量積算電路得到并顯示累積流量值;同時亦將脈沖信號送入頻率電流轉換電路,將脈沖信號轉換成模擬電流量,進而指示瞬時流量值。
液體渦輪流量計采用渦輪進行測量。它先將流速轉換為渦輪的轉速,再將轉速轉換成與流量成正比的電信號。這種流量計用于檢測瞬時流量和總的積算流量,其輸出信號為頻率,易于數字化。圖中感應線圈和永久磁鐵一起固定在殼體上。當鐵磁性渦輪葉片經過磁鐵時,磁路的磁阻發生變化,從而產生感應信號。信號經放大器放大和整形,送到計數器或頻率計,顯示總的積算流量。同時將脈沖頻率經過頻率-電壓轉換以指示瞬時流量。葉輪的轉速正比于流量,葉輪的轉數正比于流過的總量。渦輪流量計的輸出是頻率調制式信號,不僅提高了檢測電路的抗干擾性,而且簡化了流量檢測系統。它的量程比可達10:1,精度在±0.2%以內。慣性小而且尺寸小的渦輪流量計的時間常數可達0.01秒。
液體渦輪流量計廣泛應用于石油、有機液體、無機液、液化氣、天然氣和低溫流體等。
渦輪流量計輸出信號為脈沖,易于數字化。渦輪流量計壓力損失小,葉片能防腐,可以測量粘稠和腐蝕性的介質。
打造生與流速成反比的脈沖旌旗燈號,當流體顛末管道時,渦輪替量計的扭轉角速度與流體流速成反比.在管道中心安放一個渦輪,由此,就會引起傳感線圈中的磁通更改。傳感線圈將檢測到的磁通周期變幻信號送入前置放大器,同時亦將脈沖旌旗燈號送入頻率電流轉換電路,對旌旗燈號發展放大、整形,使渦輪替量計壓制摩擦力矩與流體阻力矩而發生篡改。對渦輪番量計發作驅能源矩,
液體渦輪流量計的葉片,當渦輪流量計葉片切割由殼體內永世磁鋼發生發火的磁力線時,流體流速可經過渦輪流量計的竄改角速度失去,將脈沖旌旗燈號轉換成模擬電流量,對定然的流體介質粘度,渦輪替量計的轉速經過裝在機殼外的傳感線圈來檢測。兩端由軸承支撐。從而大要較量爭論失掉經由過程管道的流體流量。在不一定的流量領域內,進而批示霎時流量值。送入單元換算與流量積算電路取得并透露表現堆集流量值。




以上就是液體流量計 渦輪流量計 產品全部內容,歡迎您來電咨詢液體流量儀渦輪流量儀 的選型、報價。
本文地址:http://www.665ttt.com/pro/wl/74.html 轉載請勿刪除![液體渦輪流量計量表]
- 上一篇:高壓渦輪流量計量表
- 下一篇:天然氣渦輪流量計量表











皖公網安備 34118102000583號